AГОСТ 22160-76
| УДК 69.024.92:678.744.32:006.351(083.74) |
Группа Ж35 |
ГОСУДАРСТВЕННЫЙ СТАНДАРТ СОЮЗА ССР
КУПОЛА ИЗ ОРГАНИЧЕСКОГО СТЕКЛА ДВУСЛОЙНЫЕ
Технические условия
Two layer domes of organic plastic.
Technical requirements
Дата введения 1978-01-01
РАЗРАБОТАН Центральным научно-исследовательским и проектно-экспериментальным институтом промышленных зданий и сооружений (ЦНИИпромзданий) Госстроя СССР
ПОДГОТОВЛЕН К УТВЕРЖДЕНИЮ Отделом технического нормирования и стандартизации Госстроя СССР
УТВЕРЖДЕН И ВВЕДЕН В ДЕЙСТВИЕ Постановлением Государственного комитета Совета Министров СССР по делам строительства от 9 августа 1976 г. №130
Настоящий стандарт распространяется на двуслойные купола из органического стекла, изготовляемые способом пневматического формования их оболочек и сваркой оболочек по контуру купола.
Купола предназначаются для заполнения световых проемов зенитных фонарей, применяемых для устройства естественного освещения в промышленных зданиях.
1. ТИПЫ И РАЗМЕРЫ
1.1. Купола могут изготавливаться двух типов:
1 - купола с шайбами по контуру и защитными колпачками, устанавливаемые на деревянные опорные элементы;
2 - купола без шайб, устанавливаемые на деревянные или металлические опорные элементы.
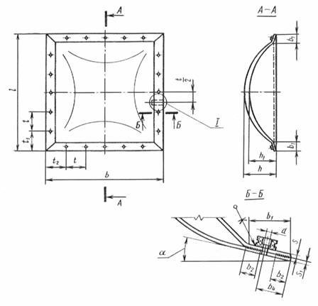
1.2. Форма, размеры куполов и их элементов, колпачков, расположение шайб должны соответствовать указанным на черт. 1-2 и в таблице.
1.3. Допускаемые отклонения размеров куполов не должны превышать в мм:
по длине и ширине ....................................................... ± 5
по высоте верхней и нижней оболочек ........................± 10
по ширине опорной площадки ...................................... ± 5
диаметра отверстий в опорной площадке ................... + 1
по ширине сварных швов ..............................................± 2
1.4. Допускаемое отклонение от угла наклона опорной площадки купола не должно превышать 1°.
Купол типа 1
.jpg)
.jpg)
Черт. 1
Купол типа 2
.jpg)
.jpg)
Черт. 2
1.5. Допускаемые отклонения размеров фильтрующего клапана купола не должны превышать в мм:
по длине ................ + 5
по ширине ............ ± 5
1.6. Допускаемые отклонения от расстояния между осями шайб и от оси крайней шайбы до кромки купола не должны превышать ± 5 мм, а от оси шайбы до кромки купола ± 1 мм.
1.7. Допускаемые отклонения размеров шайб не должны превышать в мм:
в плане .............. + 0,5
по высоте ......... ± 0,5
Размеры в мм
| Размеры купола |
Размеры фильтр
ующего
клапана купола
|
Рассто
яние
между
осями
шайб t
|
длина
l
|
ширина
b
|
Высота
оболочки |
Толщина
оболочки |
Ширина
опорной
площадки
b1 |
Угол
наклона
опорной
площадки α , град. |
Диа
метр
отвер
стий
в опорной
площадке
d
|
Ширина
сварного
шва
b2 |
Длина
l1 |
Ширина
b3 |
верхней
h |
нижней
h1 |
верхней
s |
нижней
s1 |
1600
1300 |
1400
1300 |
340
340 |
300
300 |
4; 5
4; 5 |
3; 4
3; 4 |
50
50 |
18
18 |
6
6 |
20
20 |
63
63 |
30
30 |
300
300 |
Продолжение
Размеры в мм
Расстояние
от оси
крайней
шайбы до
кромки
купола |
Расстояние
от оси
шайбы до
кромки
купола |
Размеры шайбы |
Размеры колпачка |
| в плане |
по высоте |
в плане |
по высоте |
| t1 |
t2 |
b4 |
d1 |
d2 |
d3 |
d4 |
h2 |
h3 |
h4 |
d5 |
d6 |
d7 |
d8 |
h5 |
h6 |
h7 |
200
50 |
100
50 |
30
30 |
23
23 |
21
21 |
19
19 |
12
12 |
12
12 |
5
5 |
3
3 |
26
26 |
23
23 |
21
21 |
20
20 |
11
11 |
6
6 |
3
3 |
Примечание. Допускается по соглашению изготовителя с потребителем при разовых заказах изготавливать купола других размеров, но не более 1600 х 1400 мм.
1.8. Допускаемые отклонения размеров колпачков не должны превышать в мм:
в плане ....................0,5
по высоте ............± 0,5
Пример условного обозначения купола типа I размерами 1600 х 1400 мм:
1 К 1,6 • 1,4 ГОСТ 22160-76
2. ТЕХНИЧЕСКИЕ ТРЕБОВАНИЯ
2.1. Для изготовления куполов должно применяться органическое техническое стекло марок ТОСП и ТОСН первого и второго сортов в виде необрезанных листов по ГОСТ 17622-72, а для изготовления куполов, которым в установленном порядке присвоен государственный Знак качества, - органическое стекло только первого сорта.
2.2. Кромки куполов должны быть прямыми. Допускаемые отклонения кромок от прямой не должны превышать ± 5 мм, а для куполов, которым в установленном порядке присвоен государственный Знак качества, ± 2 мм.
2.3. Купола, которым в установленном порядке присвоен государственный Знак качества, не должны иметь острых углов и кромок.
2.4. Околы углов опорных площадок куполов не допускаются.
2.5. На опорных площадках куполов допускаются отпечатки формующей оснастки.
2.6. Неплоскостность опорных площадок куполов не должна превышать 5 мм.
2.7. Сварные швы должны быть непрерывными, за исключением места расположения фильтрующего клапана, а для куполов, которым в установленном порядке присвоен государственный Знак качества, непрерывными и прямыми с допускаемым отклонением от прямой не более 3 мм.
2.8. Фильтрующий клапан между оболочками купола должен быть изготовлен из ткани из стеклянных нитей, свернутой в три слоя, по ГОСТ 19170-73, ГОСТ 19907-74 или из ткани из стеклянных нитей по техническим условиям, утвержденным в установленном порядке.
2.9. Шайбы должны быть изготовлены из сополимеров стирола по ГОСТ 12271-66.
2.10. Шайбы должны быть приклеены к опорной площадке купола клеем из пластмассы АСТ-Т или технического бутакрила по техническим условиям, утвержденным в установленном порядке.
2.11. Колпачки должны быть изготовлены из полиэтилена низкой плотности с термо- и светостабилизаторами первого или второго сорта по ГОСТ 16337-70.
2.12. Купола типа 1 должны поставляться вместе с колпачками.
3. ПРАВИЛА ПРИЕМКИ
3.1. Купола должны быть приняты техническим контролем предприятия-изготовителя в соответствии с требованиями настоящего стандарта.
3.2. Приемку куполов производят партиями. Партией считают не более 20 куполов одного типа и размера с соответствующим количеством шайб и колпачков.
3.3. Все купола в партии подвергают проверке по показателям внешнего вида.
3.4. От куполов, признанных годными по показателям внешнего вида, отбирают три купола с соответствующим количеством шайб и колпачков для проверки на соответствие требованиям пп. 1.2-2.11.
3.5. При получении неудовлетворительных результатов проверки куполов хотя бы по одному из показателей, производят поштучную приемку куполов.
При получении неудовлетворительных результатов проверки хотя бы по одному из показателей куполов, которым в установленном порядке присвоен государственный Знак качества, последние приемке по высшей категории качества не подлежат.
3.6. Потребитель имеет право производить контрольную проверку соответствия куполов требованиям настоящего стандарта, соблюдая при этом приведенный порядок отбора образцов и применяя указанные ниже методы испытаний.
4. МЕТОДЫ ИСПЫТАНИЙ
4.1. Размеры куполов и их элементов, расстояния между осями шайб, от оси крайней шайбы до кромки купола, от оси шайбы до кромки купола, высоту шайб и колпачков определяют рулеткой по ГОСТ 7502-69 или линейкой по ГОСТ 427-75 с погрешностью до 1 мм.
Схема устройства для определения высоты оболочек купола
.jpg)
1 -стол; 2 -купол; 3 -измерительная рейка; 4 -контрольные рейки.
Черт. 3
Пример определения угла наклона
опорной площадки купола
.jpg)
1 -купол; 2 -угломер; 3 -стол.
Черт. 4
4.2. Высоту оболочек купола определяют с помощью устройства, схема которого указана на черт. 3.
4.3. Угол наклона опорной площадки купола определяют угломером, как указано на черт. 4.
4.4. Диаметр отверстий в опорной площадке купола, диаметры шайб и колпачков определяют штангенциркулем по ГОСТ 166-73.
4.5. Проверку внешнего вида куполов производят по ГОСТ 17622-62 путем их осмотра в проходящем и отраженном свете при рассеянном освещении, устанавливая купол вертикально (на ребро).
4.6. Отклонение кромок купола от прямой определяют измерением щупом по ГОСТ 882-64 максимального зазора, образующегося при приложении линейки по ГОСТ 427-75 к кромке купола.
4.7. Неплоскостность опорной площадки купола определяют измерением щупом по ГОСТ 882-64 максимального зазора, образующегося при установке купола на ровную поверхность.
5. УПАКОВКА, МАРКИРОВКА,
ТРАНСПОРТИРОВАНИЕ И ХРАНЕНИЕ
5.1. Купола должны быть оклеены с двух сторон оберточной бумагой по ГОСТ 8273-75 с применением желатино-глицеринового клея, растворенного в воде. При оклейке куполов допускаются складки и морщины бумаги.
5.2. На каждый купол, обернутый бумагой, наклеивают этикетку с указанием товарного знака предприятия-изготовителя или его краткого наименования и изображения государственного Знака качества по ГОСТ 1.9-67 для куполов, которым он присвоен.
5.3. Купола в количестве не более 10 шт. должны быть упакованы в ящики или контейнеры и неподвижно в них закреплены в вертикальном положении (на ребро) в один ряд по высоте.
5.4. Колпачки должны быть упакованы в мешки из полиэтиленовой пленки по ГОСТ 10354-73, которые прикрепляют к внутренней боковой стенке ящика или контейнера.
5.5. На каждый ящик должна быть наклеена этикетка и в каждый контейнер должен быть вложен ярлык, в котором указывают:
а) наименование организации, в системе которой находится предприятие-изготовитель;
б) наименование и адрес предприятия-изготовителя;
в) наименование, количество и условное обозначение куполов;
г) номер партии и дату изготовления;
д) штамп ОТК;
е) обозначение настоящего стандарта;
ж) изображение государственного Знака качества по ГОСТ 1,9-67 для куполов, которым он присвоен.
5.6. На каждом ящике или контейнере должны быть нанесены предупредительные знаки по ГОСТ 14192-71, означающие: "Осторожно, хрупкое", "Верх, не кантовать", "Боится сырости", "Боится нагрева".
5.7. Предприятие-изготовитель должно гарантировать соответствие куполов требованиям настоящего стандарта при соблюдении потребителем условий транспортирования и хранения, установленных настоящим стандартом, и сопровождать каждую партию куполов паспортом, в котором указывают:
а) наименование организации, в системе которой находится предприятие-изготовитель;
б) наименование и адрес предприятия-изготовителя;
в) наименование, количество и условное обозначение куполов;
г) номер партии и дату изготовления;
д) штамп ОТК;
е) обозначение настоящего стандарта;
ж) изображение государственного Знака качества по ГОСТ 1,9-67 для куполов, которым он присвоен.
5.8. Транспортирование куполов производят любым видом транспорта. При транспортировании, погрузке и выгрузке куполов должны быть приняты меры, обеспечивающие их сохранность от механических повреждений.
5.9. Купола должны храниться в вертикальном положении в закрытых помещениях на расстоянии не менее 1 м от нагревательных приборов с соблюдением установленных правил пожарной безопасности.
5.10. Не допускается хранение куполов в одном помещении с химическими веществами (щелочами, кислотами, растворителями), оказывающими агрессивное воздействие на органическое стекло.
6. УКАЗАНИЯ ПО МОНТАЖУ И ЭКСПЛУАТАЦИИ
6.1. Купола, поставляемые на строительство, должны находиться в таре и бумажной упаковке до их монтажа в конструкциях зенитных фонарей.
6.2. Монтаж куполов должен производиться способами, исключающими возможность механических повреждений или загрязнения их поверхностей.
6.3. Купола типа 1 должны крепиться к опорным элементам шурупами, типа 2 - кляммерами.
6.4. Очистка поверхности куполов от загрязнений должна производиться теплой водой с применением моющих средств. Протирка поверхности органическими растворителями (ацетоном, дихлорэтаном и т.п.) не допускается.
6.5. Складывание наледей и смерзшегося снега с поверхности куполов при их эксплуатации не допускается.
ПРИЛОЖЕНИЕ 1
Справочное
Теплотехническая и светотехническая
характеристики куполов
Коэффициент теплопередачи ..........2,86 Вт/м • К
Коэффициент светопропускания .......0,81
ПРИЛОЖЕНИЕ 2
Справочное
ТРЕБОВАНИЯ ПОЖАРНОЙ БЕЗОПАСНОСТИ К ЗЕНИТНЫМ ФОНАРЯМ
С КУПОЛАМИ ИЗ ОРГАНИЧЕСКОГО СТЕКЛА
1. Зенитные фонари разрешается применять для устройства естественного освещения помещений зданий промышленных предприятий не ниже II степени огнестойкости, в которых размещаются производства, относимые по пожарной опасности к категориям Г и Д.
2. Общая площадь световых проемов зенитных фонарей должна составлять не более 15% от площади покрытия.
3. Зенитные фонари разрешается совмещать в группы, принимая их за один фонарь. Общая площадь световых проемов этих фонарей не должна превышать 10 м .
4. Расстояние между зенитными фонарями в свету должно быть не менее:
а) при площади световых проемов до 5 м -3 м;
б) при площади световых проемов от 5 до 10 м - 4,5 м.
5. Расстояние между зенитными фонарями в свету площадью световых проемов от 5 до 10 м , размещаемыми в покрытии в продольном направлении с шагом 6 м и более, в поперечном направлении может быть уменьшено до 3 м, причем через каждые 4 фонаря должны быть устроены противопожарные разрывы шириной не менее 6 м.
6. В покрытии здания через каждые 54 м между зенитными фонарями в продольном и поперечном направлениях должны быть устроены противопожарные разрывы шириной не менее 6 м. Расстояние по горизонтали от противопожарных стен до зенитных фонарей должно быть не менее 5 м.
7. Утепление покрытий, в которых устанавливаются зенитные фонари, должно быть выполнено из несгораемых или трудносгораемых материалов.
8. Покрытие с рулонными кровлями должно иметь защитный слой по всей кровле толщиной 10-15 мм из мелкого гравия, крупность зерен которого должна быть 5-10 мм.
9. Часть зенитных фонарей общей площадью световых проемов не менее 0,6% от площади пола должна быть оборудована специальными устройствами и механизмами для автоматического открывания с целью удаления дыма из помещений в случае пожара. Эти фонари должны быть равномерно размещены по площади покрытия.
СОДЕРЖАНИЕ
1. Типы и размеры
Купол типа 1
Купол типа 2
2. Технические требования
3. Правила приемки
4. Методы испытаний
Схема устройства для определения высоты оболочек купола
Пример определения угла наклона опорной площадки купола
5. Упаковка, маркировка, транспортирование и хранение
6. Указания по монтажу и эксплуатации
ПРИЛОЖЕНИЕ 1 (справочное). Теплотехническая и светотехническая характеристики куполов
ПРИЛОЖЕНИЕ 2 (справочное). Требования пожарной безопасности к зенитным фонарям с куполами из органического стекла